Papamoarealestate

powered by Open2view.com

111 Links Avenue

Bay of Plenty
3
2
N/A
200sqm
634sqm
111 Links Avenue Bay of Plenty
Openhome
Sunday
2.30pm - 3pm
proudly marketed by
Anna Lawrence
Realty Focus Ltd
Sunny, Spacious & Mount Convenience
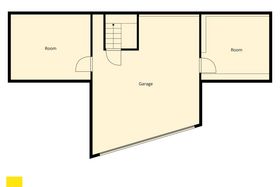
Step into this inviting home full of comfort, character, and potential. Situated in one of Mount Maunganui's most convenient pockets, this three bedroom, two bathroom property blends timeless charm with modern touches, including a beautifully upgraded kitchen and main bathroom. Three well proportioned bedrooms are complemented by two spacious living areas, offering flexibility for families, work, or entertaining, while a separate laundry and back covered porch help keep everyday life organised. Outdoor living is a highlight, with both front and rear decks ensuring effortless enjoyment from sunrise to sunset. The fully fenced section provides privacy, security, and space for a pool (with council consent) or enhance further with landscaping. A standout feature is the downstairs double garage with workshop plus a storage room and an additional versatile room - perfect for hobbies, a home office or studio. There is generous off street parking, with plenty of room for the boat, trailer, campervan, or visitors. Just moments from Bayfair Mall, local schools, public transport links, and the beach, this address places you right in the heart of everything, with reserve views adding to the everyday enjoyment. Whether you're looking to renovate further, invest, or secure your slice of the Mount, this is a prime opportunity on popular Links Avenue ready for its next chapter. Call now to view, as this versatile property wont last long! Estelle Johnson - 021 474 488 Anna Lawrence - 027 468 2447
Question
Location
Upload by Brodie Geerlings
Bay of Plenty
This property was photographed by